
এইচডি প্রকার ইউরোপীয় লিস্ট ইলেকট্রিক একক গার্ডার ওভারহেড কপিকল
ইউরোপীয় একক গের্ডার ওভারহেড কপিকল কম্প্যাক্ট উত্তোলন যন্ত্রপাতি ডিজাইন এবং ফেড এবং ডিন মান সঙ্গে কঠোর অনুযায়ী উত্পাদন, যা উন্নত প্রযুক্তি এবং সুন্দর নকশা সঙ্গে। সাধারণ ধরনের এবং সাসপেনশন প্রকারের মধ্যে বিভক্ত, ইউরোপীয় স্ট্যান্ডার্ড বৈদ্যুতিক উত্তোলন, কর্মশালার জন্য উপযুক্ত এবং গুদাম উপাদান হ্যান্ডলিং, বড় অংশ স্পষ্টতা সমাবেশ এবং অন্যান্য স্থান ব্যবহার সমর্থন।
এইচডি প্রকার ইউরোপীয় লিস্ট ইলেকট্রিক একক গার্ডার ওভারহেড কপিকল
সংক্ষিপ্ত বর্ণনা:
ইউরোপীয় একক গের্ডার ওভারহেড কপিকল কম্প্যাক্ট উত্তোলন যন্ত্রপাতি ডিজাইন এবং ফেড এবং ডিন মান সঙ্গে কঠোর অনুযায়ী উত্পাদন, যা উন্নত প্রযুক্তি এবং সুন্দর নকশা সঙ্গে। সাধারণ ধরনের এবং সাসপেনশন প্রকারের মধ্যে বিভক্ত, ইউরোপীয় স্ট্যান্ডার্ড বৈদ্যুতিক উত্তোলন, কর্মশালার জন্য উপযুক্ত এবং গুদাম উপাদান হ্যান্ডলিং, বড় অংশ স্পষ্টতা সমাবেশ এবং অন্যান্য স্থান ব্যবহার সমর্থন।

এটি যন্ত্রপাতি উত্পাদন, ধাতুবিদ্যা, পেট্রোলিয়াম, পেট্রোফিউশন, পোর্ট, রেলওয়ে, বেসামরিক বিমান চলাচল, খাদ্য, কাগজ তৈরি, নির্মাণ, ইলেকট্রনিক্স শিল্পের কর্মশালা, গুদাম এবং অন্যান্য উপাদান পরিচালনার পরিস্থিতিতে ব্যাপকভাবে ব্যবহৃত হতে পারে। উপাদান পরিচালনার জন্য প্রয়োগ করা হয় যা সঠিক পজিশনিং প্রয়োজন, বৃহৎ উপাদানগুলি যথাযথ সমাবেশ পরিস্থিতি।

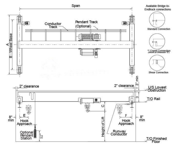
বিস্তারিত চিত্রগুলি:

স্কেচ অঙ্কন:

প্রযুক্তিগত পরামিতি:
বিঘত | মি | 7.5 | 10.5 | 13.5 | 16.5 | 19.5 | 22.5 | 25.5 |
ধারণক্ষমতা | টি | 1 ~ 12.5t | ||||||
সম্পূর্ণ ওজন | কেজি | 1781 ~ 12086 | ||||||
ট্রলি ওজন | কেজি | 405 ~ 740 | ||||||
সর্বোচ্চ। চাকা লোড | KN | 13.5 ~ 90,94 | ||||||
ভ্রমণ রেল | P24 ~ P43 | |||||||
উদ্ধরণ গতি | মিঃ / মিনিট | 0.8 / 5 | 0.8 / 5 | 0.8 / 5 | 0.8 / 5 | 0.8 / 5 | 0.8 / 5 | 0.8 / 5 |
উচ্চতা উত্তোলন | মি | ≥ 6 | ≥ 6 | ≥ 6 | ≥ 6 | ≥ 6 | ≥ 6 | ≥ 6 |
মোট মোটর শক্তি | KW | 4.31 | 4.31 | 4.31 | 4.31 | 4.67 | 4.67 | 4.67 |
কপিকল গতি | মিঃ / মিনিট | 3-30 | 3-30 | 3-30 | 3-30 | 3-30 | 3-30 | 3-30 |
ট্রলি গতি | মিঃ / মিনিট | 2-20 | 2-20 | 2-20 | 2-20 | 2-20 | 2-20 | 2-20 |
কাজের দায়িত্ব | : M5 / A5 | |||||||


English
Lietuvių
dansk
Srbija jezik (latinica)
Melayu
Български
slovenščina
suomi
Español
한국어
Ar hñä ar Keleitaluoaotuomi
magyar





